The Green Room - Sustainable Livestyle Living

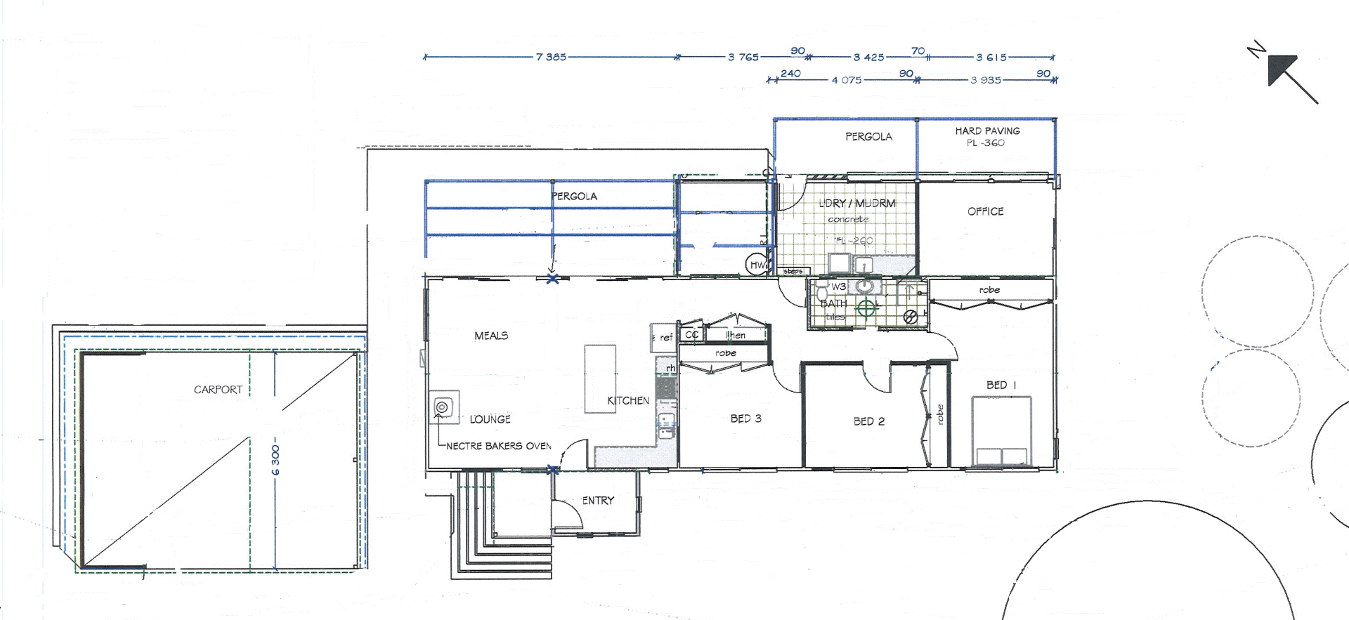
An award winning solar passive home set on 7.19 hectares of land rejuvenated using permaculture design principals with the main focus being on water retention on farm. Keeping the original footprint the home has been totally renovated and reorientated to maximise the north sun, low toxic products and finishes have been used as well as recycled materials and it has been double glazed throughout. Victorian Ash clad the home features; an open plan living area with polished floor boards and every window a picture frame, ducted evaporative cooling, a Nectre Bakers oven, gas cook top and electric oven, built in robes and a centrally located bathroom with a large walk in shower recess. There is also a spacious laundry/mudroom and separate office. The living area opens to a North facing outdoor entertaining area. Plenty of shedding including open bay storage, raised floor feed sheds and 2 fox proof chicken runs with housing.

A great deal of thought has gone into the reenergizing the land with the construction of swales and berms to make the best use of rainfall, connecting dams and the planting of native tree belts. The soils have been aerated using biodynamic preparations – activated rock dust, lime, Nutri-soil and worm juice have been applied to balance the soil and feed micro-organisms. Tree Lucerne has been established to supplement fodder for livestock and act as wind breaks along with 1,000 native trees and acacias. An extensive orchard includes many citrus, fruit and nut trees. Plenty of water storage with 136,000 litre rainwater tank off the home plus a further 20,000 litres and 2 dams for livestock.

This is a very good opportunity of capitalising on some very careful and calculated planning by the current owners. A very comfortable, environmentally friendly home with low running costs, well established surrounds, a school bus stop 250 meters from the front gate, access to the Rail Trail and easy commuting distance to Myrtleford, Beechworth or Wangaratta.  

3 1 2 7.19 ha
Address 3539 Great Alpine Rd, Myrtleford
Price SOLD
Property Type Residential
Property ID 1676
Category Acreage Semi-rural
Land Area 7.19 ha

Agent Details

Bernard Ivone photo

Bernard Ivone

0428 522 572
View Profile

Property Documents