Room for a Pony

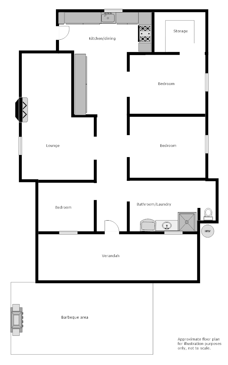
‘Girraween’ Just out of town on approximately 1.2 hectares of undulating land with a 3 bedroom cottage that includes a combined kitchen/dining room with gas cooking and reverse cycle air conditioning, a separate lounge also with a reverse cycle air conditioner and an open fire place, updated disable friendly bathroom, an outdoor entertaining area and plenty of shedding which includes 2 garages with roller doors and lock up storage sheds. The property has town water connected plus a rainwater tank, very well established gardens with many old roses and is very handy to Myrtleford, jump on the Rail Trail and you’re almost in town.

Disclaimer: All care has been taken in compiling these particulars, but the vendor and their agents do not guarantee the details and cannot accept responsibility for errors or misdescriptions if any. Intending purchasers should satisfy themselves as to the correctness of details.

3 1 2 1.20 ha
Address 92 Old Ovens Highway, Myrtleford
Price SOLD
Property Type Residential
Property ID 1825
Category Acreage Semi-rural
Land Area 1.20 ha

Agent Details

Bernard Ivone photo

Bernard Ivone

0428 522 572
View Profile