UPDATED HOME WITH MAN CAVE & EXTRA SHEDDING

Located in a quiet street close to shops and schools, this well presented family home is set on a generous and lovingly maintained 911m2 block.

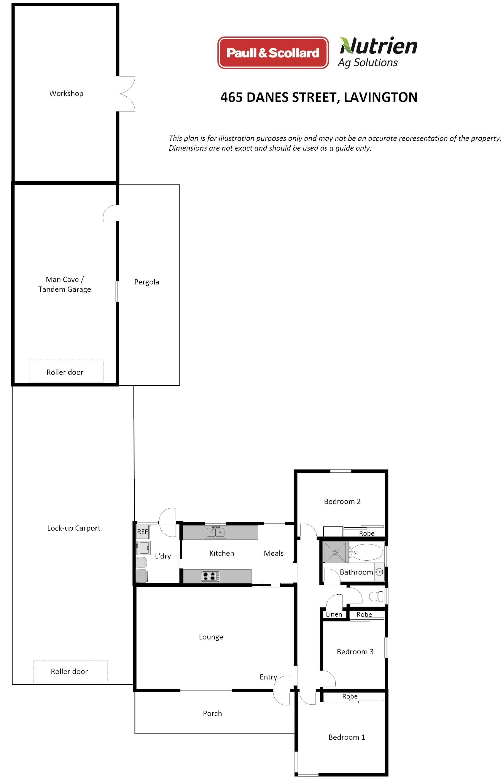
Comprising 3 bedrooms with built-in robes, main bathroom with shower, bath and separate toilet. Featuring a spacious front lounge and modern galley style kitchen with dishwasher, book-ended by the adjoining meals and laundry. Day/night block-out blinds are found throughout, while ducted heating and cooling service the home.  

Features continue outside with a remote end-to-end double lock-up carport flowing onto the huge man cave with roller door, large enough for a further 2 cars. Enjoy the outdoors from the expansive pergola or shade sail covered entertaining area overlooking the beautifully maintained secure backyard. Additional storage is provided by the 7m x 4m powered shed/workshop, attached to the end of the man cave.

Inspection of this impressive home and the unexpected extras will not disappoint!

Disclaimer: All care has been taken in compiling these particulars, but the vendor and their agents do not guarantee the details and cannot accept responsibility for errors or misdescriptions if any. Intending purchasers should satisfy themselves as to the correctness of details.

3 1 2 911 m2
Address 465 Danes St, Lavington
Price SOLD for $300,000
Property Type Residential
Property ID 1906
Category House
Land Area 911 m2

Agent Details

Brendan Lee photo

Brendan Lee

0455 889 998
View Profile