FAMILY HOME WITH SHEDDING & MAN CAVE

Positioned on a generous 1,032m2 allotment close to schools and shops, this rendered home is ideal for families or investors alike.

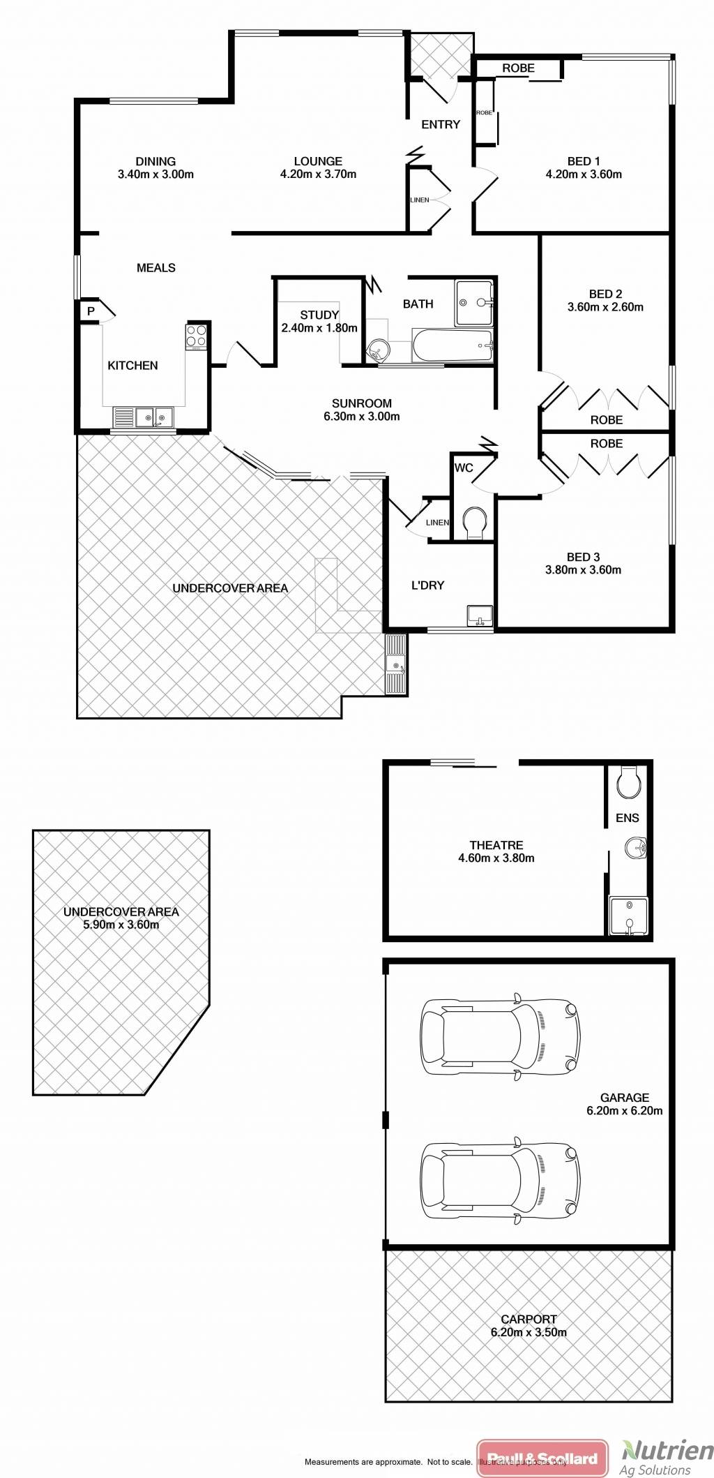
Comprising 3 bedrooms with robes, main bathroom with bath, shower and separate toilet. Featuring a modern kitchen with dishwasher, adjoining meals and open plan lounge/dining. A multi-purpose sunroom at the rear of the home opens onto the study with built-in cabinetry. Timber floors, gas heating, ducted cooling, split system air conditioning and ceiling fans complete the home.

Entertain in style from the large all weather alfresco with brick bar and sink overlooking the huge backyard. Further living space is provided by the separate man cave/home theatre with the convenience of a full ensuite, making it perfect for a teenager's retreat or as guest accommodation. Includes a double garage, single carport and additional undercover storage area. Call to inspect.

 

Features

Study
3 2 3 1,032 m2
Address 452 Ainslie Ave, Lavington
Price SOLD
Property Type Residential
Property ID 1984
Category House
Land Area 1,032 m2

Agent Details

Brendan Lee photo

Brendan Lee

0455 889 998
View Profile