LARGE CLASSIC HOMESTEAD WITH EXCELLENT SHEDDING

Nestled on a generous 1,518m2 allotment, this beautiful homestead boasting classic country touches will suit even the largest of families.

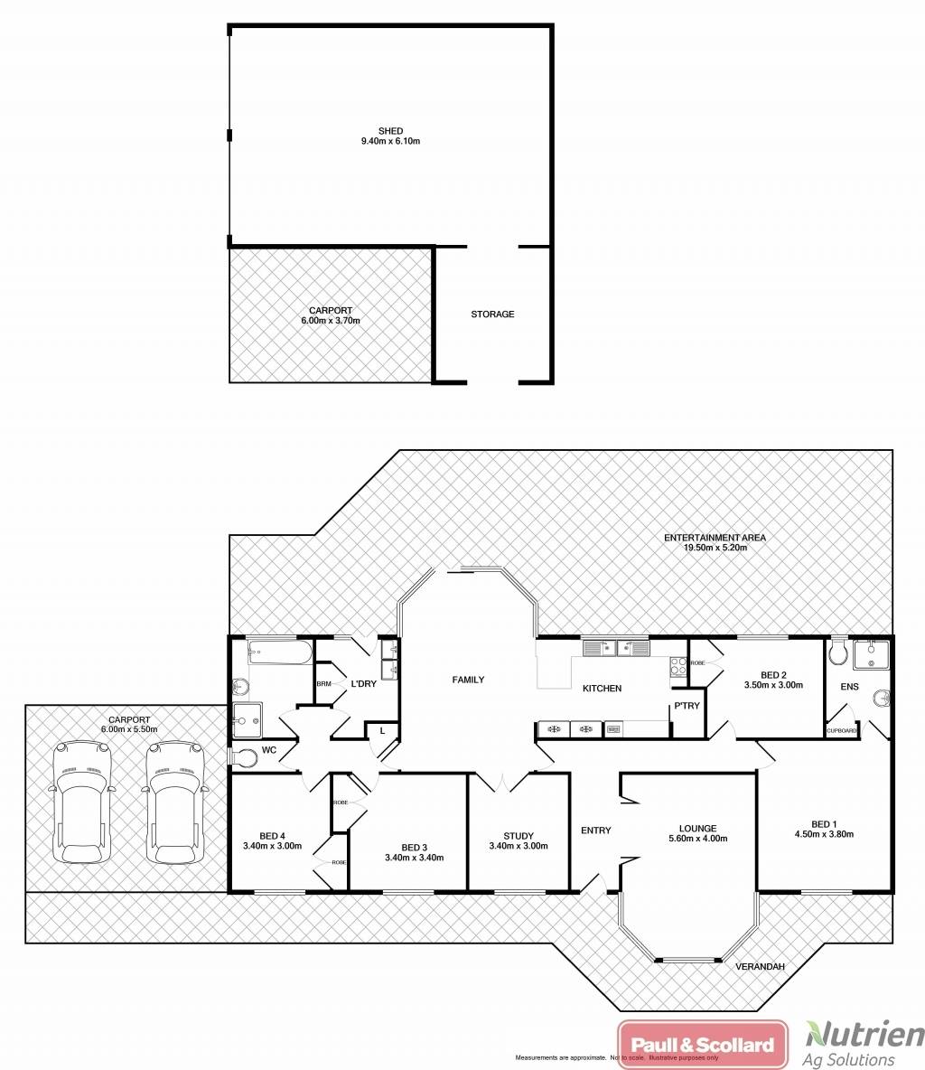
Comprising 4 double bedrooms, master with ensuite, large study ideal for a home office/multi-purpose room/5th bedroom, second bathroom to service the home. Featuring kitchen with dishwasher, walk-in pantry and electric cooking, open plan meals/family and spacious formal lounge with wood fire and bay window. Ceiling fans, ducted cooling and wood heating ensure year round comfort is maintained.

Enjoy the outdoors from the traditional front verandah or expansive covered entertaining area. The double carport, 9m x 6m powered shed with concrete floor, twin roller doors, adjoining workshop and single carport, offer extensive vehicle accommodation and storage options. The fully fenced yard with rear lane access and water tank offers plenty of room for kids play equipment.

Contact Brendan to arrange a private, mutually convenient inspection which is sure to impress! Please note: Covid regulations apply.

 

Disclaimer: All care has been taken in compiling these particulars, but the vendor and their agents do not guarantee the details and cannot accept responsibility for errors or misdescriptions if any. Intending purchasers should satisfy themselves as to the correctness of details.

4 2 5 1,518 m2
Address 6 King St, Culcairn
Price SOLD for $464,000
Property Type Residential
Property ID 2180
Category House
Land Area 1,518 m2

Agent Details

Brendan Lee photo

Brendan Lee

0455 889 998
View Profile