ATTENTION RENOVATORS

Situated on a generous, approximately 1,101m2 block with rear and side lane access, this 2 bedroom brick home is ideal for those looking for a renovation project.

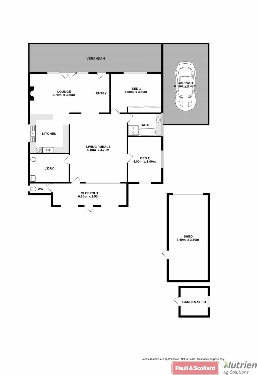
The property includes:

  • 2 large bedrooms, main with built-in robes
  • front lounge with french doors
  • spacious multi-purpose area - could be used as family/dining or be converted into a 3rd bedroom
  • bathroom with separate bath and shower
  • rear sunroom
  • front porch area
  • carport, large single lock-up garage, garden shed

Within easy commute to Wagga Wagga and Albury-Wodonga, Henty offers you the chance to enjoy a true regional lifestyle in an ideal location.

Disclaimer: All care has been taken in compiling these particulars, but the vendor and their agents do not guarantee the details and cannot accept responsibility for errors or misdescriptions if any. Intending purchasers should satisfy themselves as to the correctness of details.

2 1 2 1,101 m2
Address 1 Second Ave, Henty
Price SOLD for $175,000
Property Type Residential
Property ID 2208
Category House
Land Area 1,101 m2

Agent Details

Brendan Lee photo

Brendan Lee

0455 889 998
View Profile