DECEPTIVELY LARGE FAMILY HOME

Set on a generous allotment of approximately 984m2, this deceptively large home is suitable for families and investors alike.

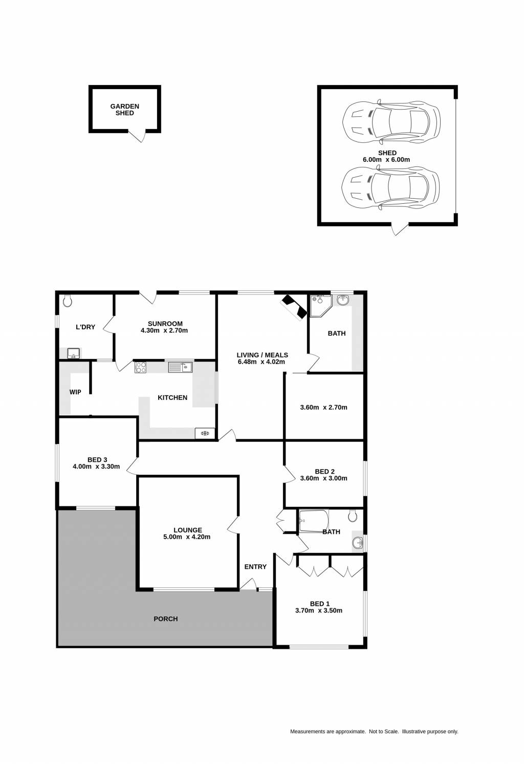
Comprising 4 spacious bedrooms, 2 bathrooms and internal laundry with second toilet. Featuring an updated kitchen with walk-in pantry, adjoining open plan living/meals with wood fire, large front lounge and multipurpose rear sunroom. Reverse cycle air conditioning provides year round climate comfort.

Enjoy the outdoors from the expansive front porch. Includes a remote double lock-up garage/shed with power and concrete floor, garden shed for extra storage, water tank and backyard with plenty of room for kids to play.

Contact Brendan to arrange a mutually convenient private inspection.

Disclaimer: All care has been taken in compiling these particulars, but the vendor and their agents do not guarantee the details and cannot accept responsibility for errors or misdescriptions if any. Intending purchasers should satisfy themselves as to the correctness of details.

4 2 2 984 m2
Address 3 King St, Culcairn
Price SOLD
Property Type Residential
Property ID 2363
Category House
Land Area 984 m2

Agent Details

Brendan Lee photo

Brendan Lee

0455 889 998
View Profile