BEAUTIFUL OUTLOOK AND ROOM TO MOVE

Set in an elevated position on approximately 977m2 to take advantage of the views to the ranges, this lovingly maintained, multi-storey home will impress with the size and space on offer.

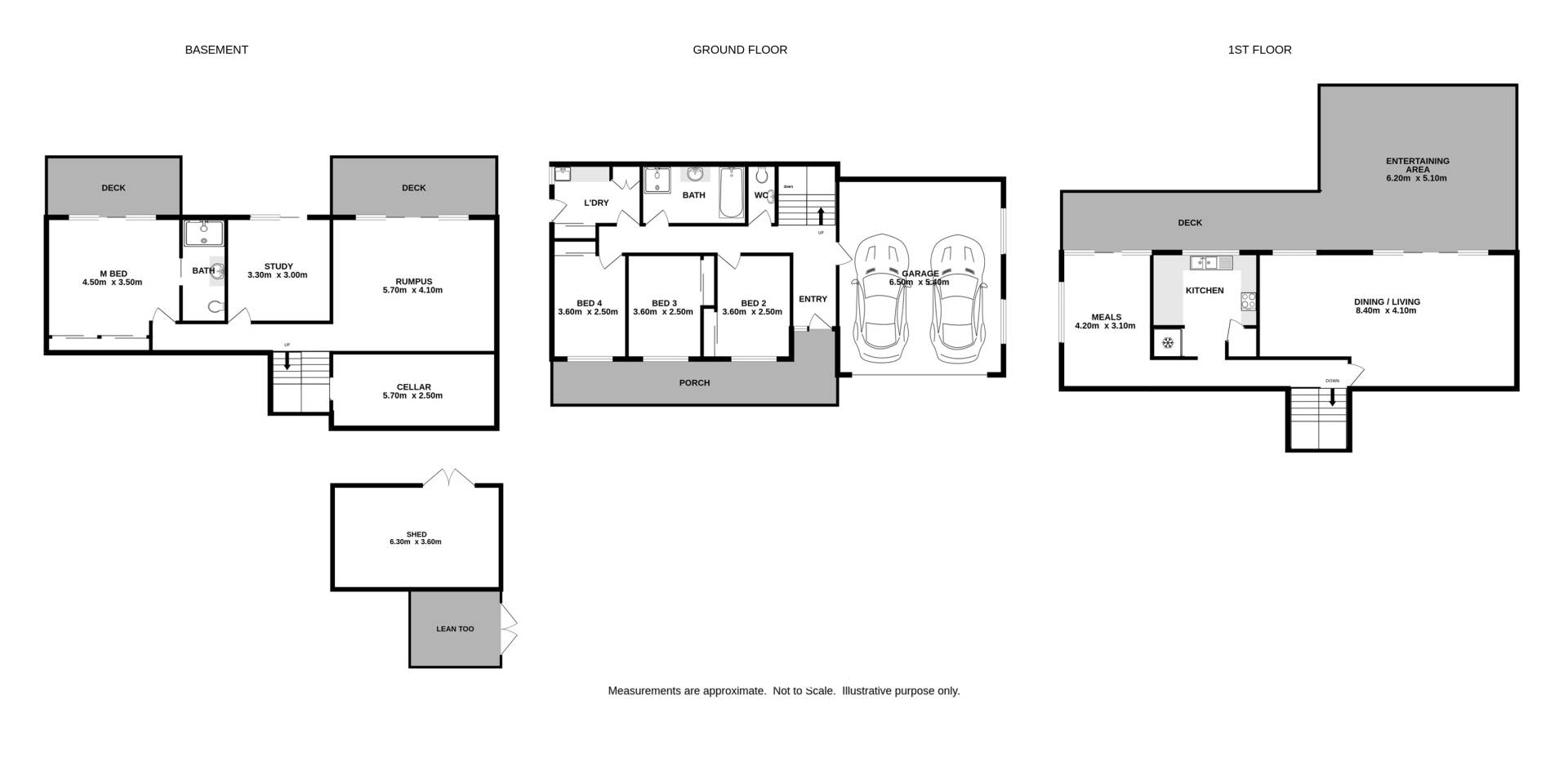
Ideal for growing families, the home is spread across 3 separate floors and offers 4 bedrooms with built-in robes, a study, 2 bathrooms and multiple living areas. Parents are afforded maximum privacy from the master bedroom complete with ensuite and their own personal deck, home office, rumpus room and cellar, all of which are housed on the lower floor. The street level comprises 3 bedrooms, renovated laundry, main bathroom with bath & shower, and separate toilet. Designed for entertaining and living, the upper level includes a well-equipped, updated kitchen with adjoining meals area, spacious open plan dining/family room and an expansive covered deck to enjoy the views. A new hot water system, ducted vacuum, gas and wood heating, ceiling fans, split system air conditioning and evaporative cooling add the finishing touches.

Features continue outside with a remote double lock-up garage, large garden shed with concrete floor and connecting skillion for additional storage, and 2.5kw solar system for energy efficient living. The leafy front yard and vine covered front patio provide shelter and privacy to the home, while the secure and spacious backyard complete with rainwater tank and side & rear access, offers plenty of room for the kids to play.

Contact Brendan to arrange a mutually convenient, private inspection which is sure to impress!

Disclaimer: All care has been taken in compiling these particulars, but the vendor and their agents do not guarantee the details and cannot accept responsibility for errors or misdescriptions if any. Intending purchasers should satisfy themselves as to the correctness of details.

Features

Study
4 2 2 977 m2
Address 10 Mountain View Dr, Lavington
Price SOLD for $660,000
Property Type Residential
Property ID 2463
Category House
Land Area 977 m2

Agent Details

Brendan Lee photo

Brendan Lee

0455 889 998
View Profile