UPDATED FAMILY HOME

Ideal for investors, those looking to enter the market or to downsize, this refurbished home is set on a generous 883m2 block within short walking distance of all local facilities.

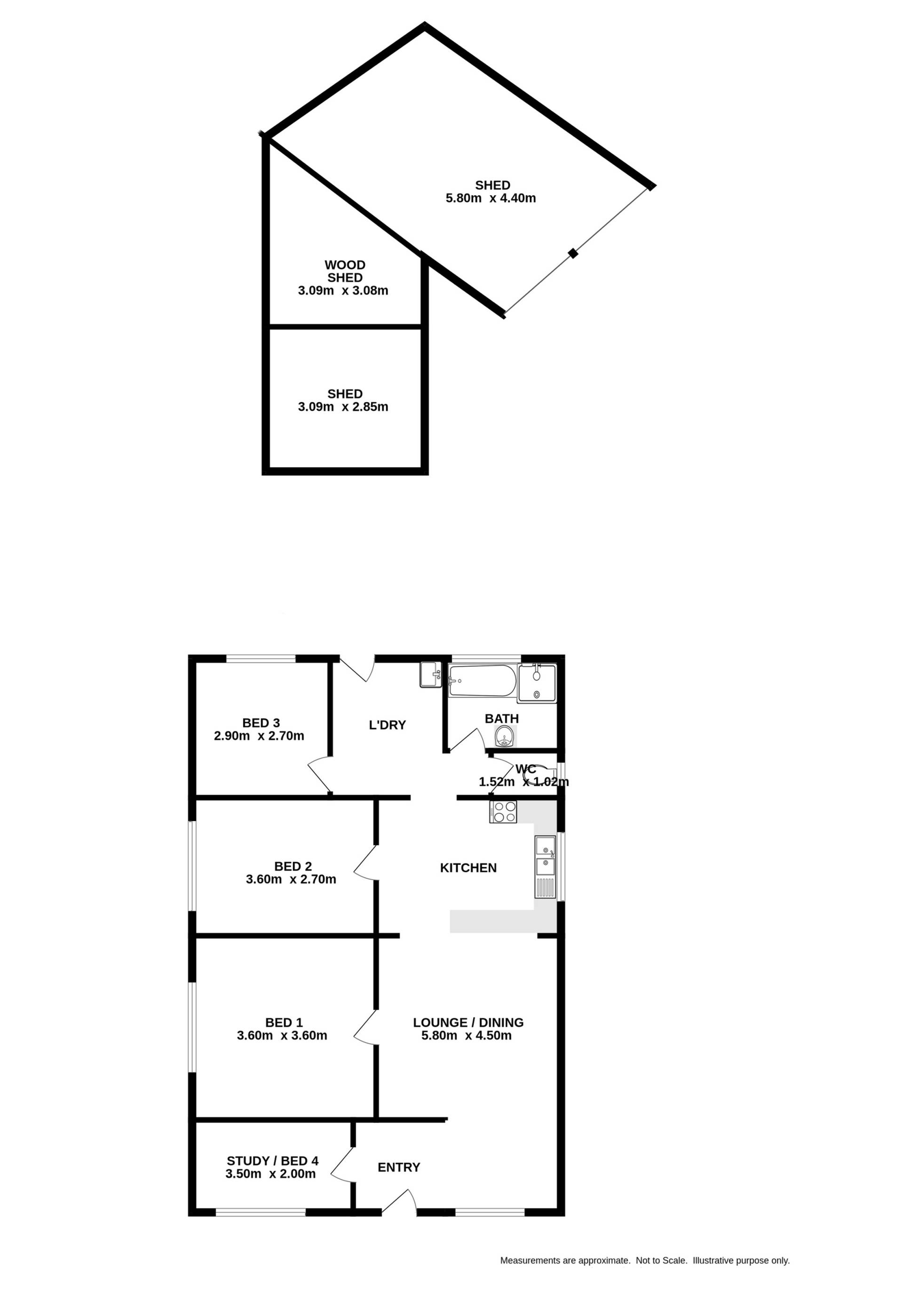
Large enough for the whole family yet small enough to offer low maintenance living, the home comprises 3 bedrooms plus 4th bedroom/study, main bathroom and internal laundry/mud room. Featuring an updated kitchen with electric cooking and timber look flooring, adjoining open plan meals/living room highlighted with exposed beams. Split system air conditioning services the home.

Outdoors includes a single lock-up garage, carport and large fully fenced yard with side access gate. Conveniently positioned directly beside a park with new shaded playground, this very affordable home is perfect for young families and will not last long.

Contact Brendan to arrange a mutually convenient, private inspection.

 

 

Disclaimer: All care has been taken in compiling these particulars, but the vendor and their agents do not guarantee the details and cannot accept responsibility for errors or misdescriptions if any. Intending purchasers should satisfy themselves as to the correctness of details.

Features

Study
3 1 2 883 m2
Address 25 Melville Street, Culcairn
Price SOLD for $190,000
Property Type Residential
Property ID 2496
Category House
Land Area 883 m2

Agent Details

Brendan Lee photo

Brendan Lee

0455 889 998
View Profile