Secure Yard, Showroom and Large Workshop

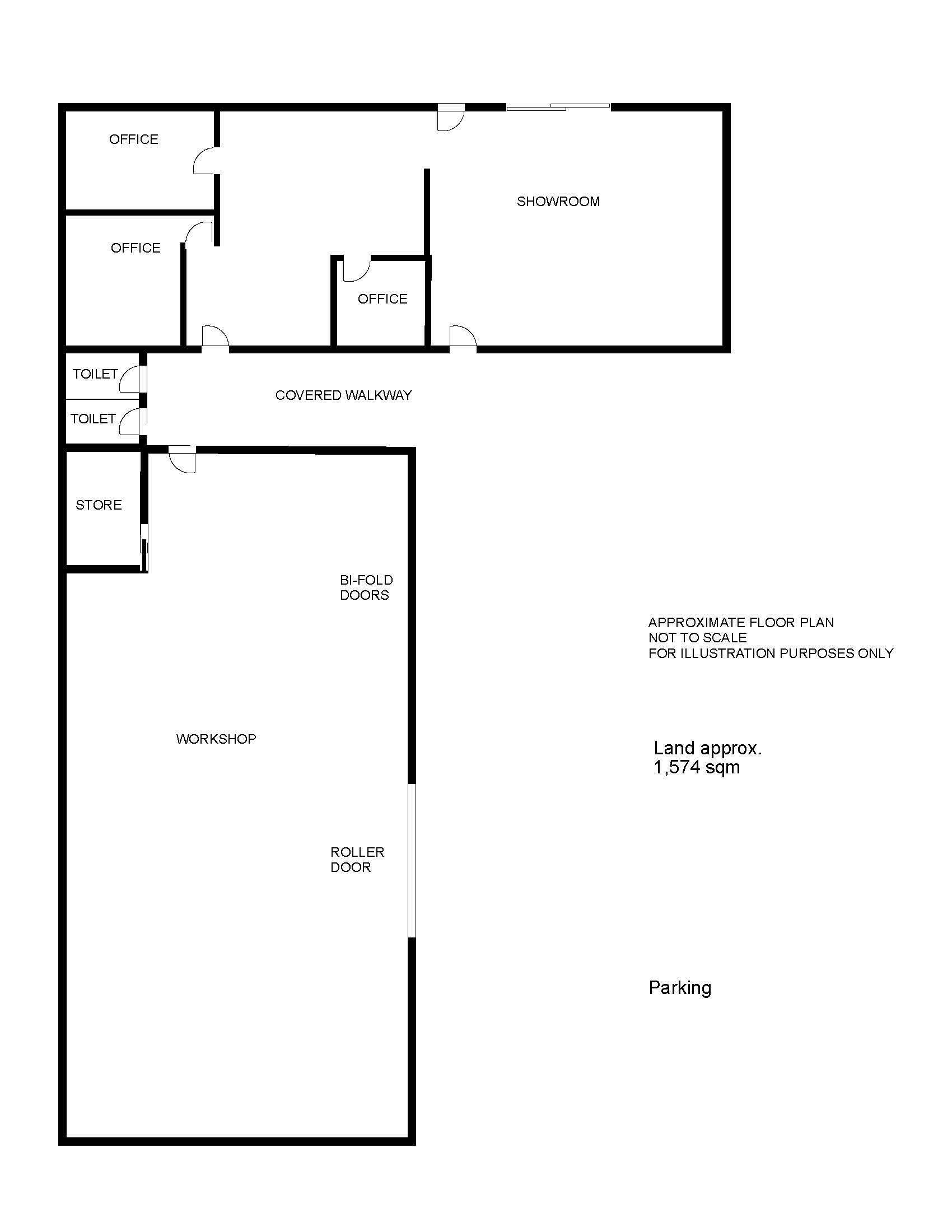
This large, centrally located site offers a variety of opportunity for an array of business ventures. Consisting of a showroom (approximately 120m2) that includes three office spaces, a large workshop (approximately 160m2) with roller door, and a walls length of bi-fold doors for ample access options. Two separate toilets. Fully fenced yard and secure buildings. The land size is approximately 1574m2 and provides ample space for a variety of uses, including plenty of parking area. Being close to the centre of town and located on the main route through Myrtleford, this site provides high volume of public exposure for your business. 

Leasing at $3,000 per month (GST is not applicable), plus outgoings. Contact Property Manager for further details. 

 

Disclaimer: All care has been taken in compiling these particulars, but the vendor and their agents do not guarantee the details and cannot accept responsibility for errors or misdescriptions if any. Intending purchasers should satisfy themselves as to the correctness of details.

1 2
Available Available Now!
Address 77 Myrtle St, Myrtleford
Price $3,000 per month plus Outgoings
Property Type Rental
Property ID 2570
Category Warehouse
Warehouse Area 160m2

Agent Details

Jess Harris photo

Jess Harris

0428484866
View Profile