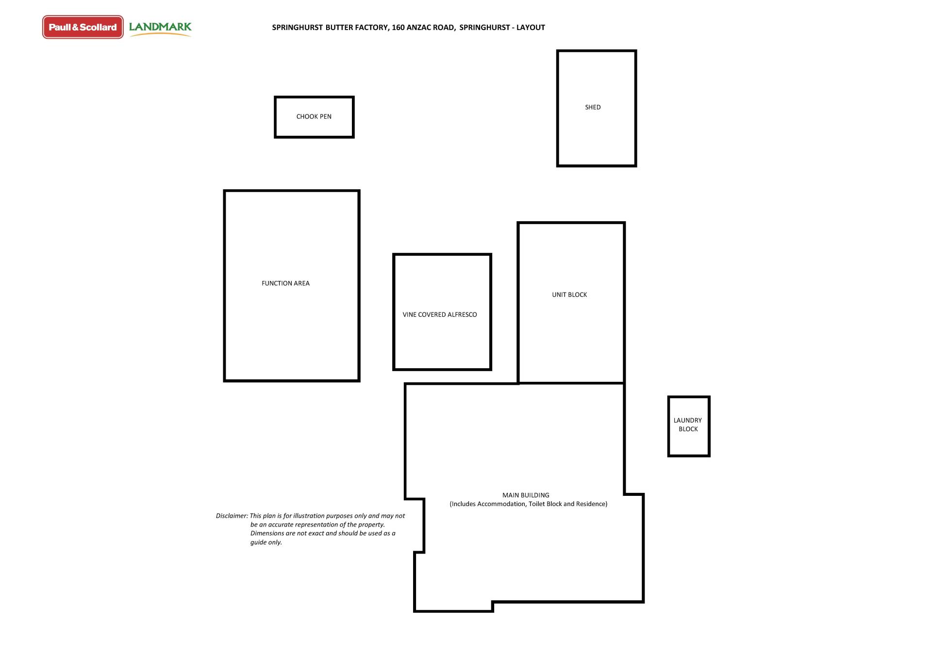
SPRINGHURST BUTTER FACTORY & FUNCTION CENTRE

Established in 1893 the Springhurst Butter Factory is a unique piece of Australian History, and then built on this current site in 1913 and subsequently closed as a Butter Factory in 1968, is now looking to extend its unique piece in Australian History. Beautifully located on the banks of the Diddah Diddah Creek on approx 3.5 acres, and now just ripe for some new owners after some very careful restoration over the last 11 years, the Springhurst Butter Factory, complete with many inclusions. There are that many "Features, Advantages and Benefits" that this unique property offers that only a time friendly private inspection by appointment could quantify, so do not defer an inspection if you could be interested. Many different users come to mind after my time spent there!! I have very genuine vendors who are anxious to move on to their next project, so do not defer on this opportunity.

 

 

Features

Too many "Feature, Advantages
10 5 9 1.41 ha
Address 160 Anzac Rd, Springhurst
Price SOLD
Property Type Rural
Property ID 1873
Land Area 1.41 ha
Floor Area 1,116 m2

Agent Details

Brian O'Shea photo

Brian O'Shea

0427 931 102
View Profile