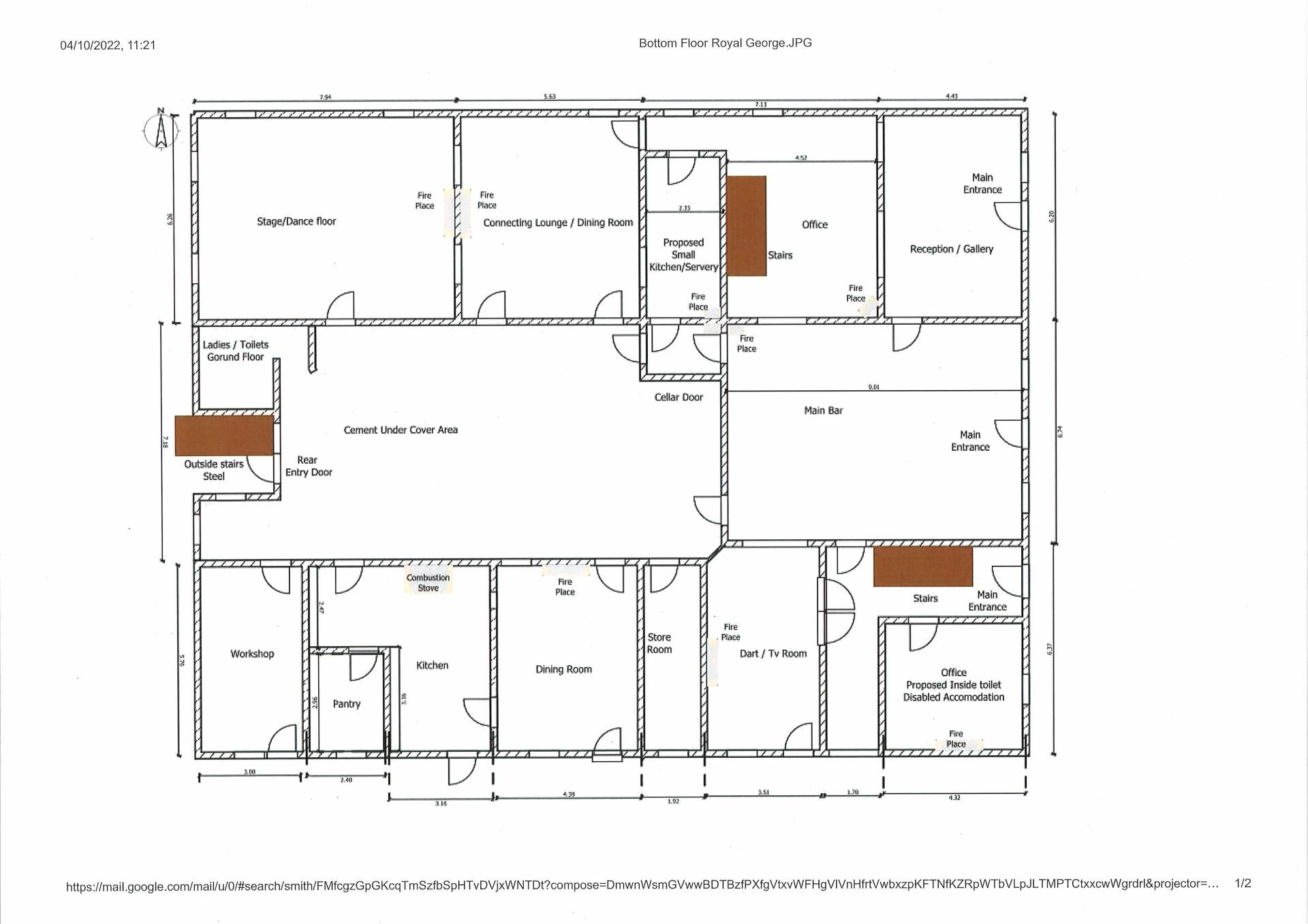
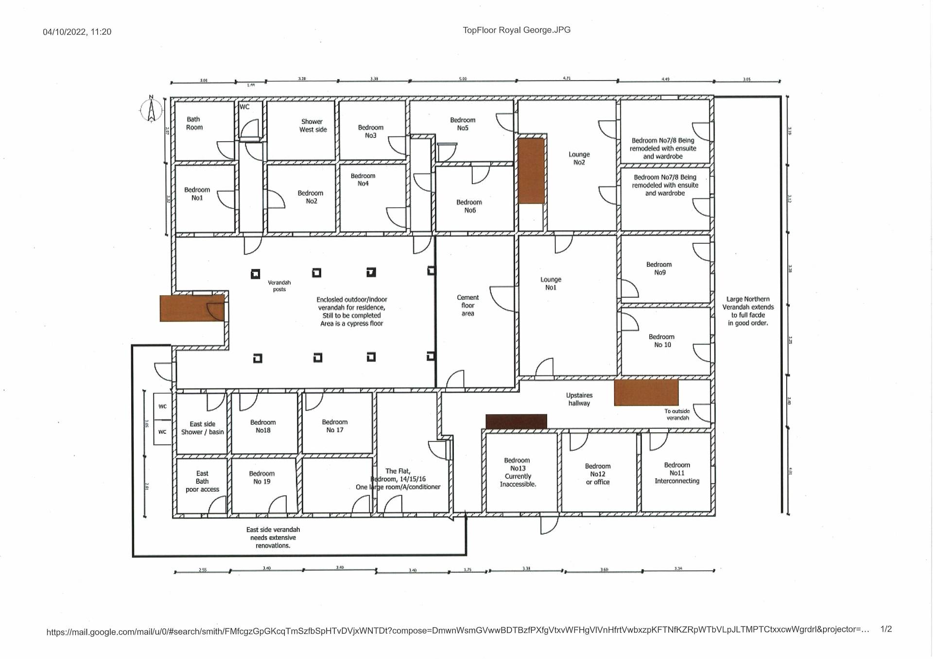
LARGE HOME &/OR POTENTIAL BUSINESS PREMISES

Being built in 1875 and then with the 1st floor added  in 1926, this unlicensed Hotel is now primed for the next regeneration of genuine activity of many new patrons or a residential home.. Bearing in mind that Urana and the surrounding Districts have many attractions for these patrons to visit and enjoy. The Royal George has many rooms, as per the Plans and now requires new operators to complete the renovations that have been well commenced and return this famous Hotel to its former glory and a alternative destination for the Tourist market. There are many uses for the Royal George that come to mind that would be financially sustainable for those seeking an enthusiastic and rewarding lifestyle opportunity, or a residence. The property offers an opportunity to complete the renovations and possible extensions, as well as purchasing the adjoining block of land for development. Urana is located in the Southern Riverina and only an hour from the twin cites of Albury/Wodonga, and the lake at Yarrawonga/Mulwala and hosts most of the daily services required for your everyday requirements, schools, hotel, hospital Chemist, Doctor, an Aquatic Centre  water activity and the Waterfront Pavilion plus many more local attractions. Private and time friendly inspections strictly by appointment.

 

Disclaimer: All care has been taken in compiling these particulars, but the vendor and their agents do not guarantee the details and cannot accept responsibility for errors or misdescriptions if any. Intending purchasers should satisfy themselves as to the correctness of details.

Features

Verandah Fireplace Too many "Feature, Advantages
19 4 2,023 m2
Address 26 Stephen St, Urana
Price SOLD
Property Type Residential
Property ID 2274
Category Other
Land Area 2,023 m2

Agent Details

Brian O'Shea photo

Brian O'Shea

0427 931 102
View Profile